Sistemele de fațadă ajută la construirea fațadelor din sticlă ale clădirilor, precum: bănci, hoteluri, clădiri de birouri, saloane auto, hale spotrive etc. Sunt folosite de asemenea pentru executarea a numeroase structuri spațiale și a vitrificărilor pentru acoperișuri, a căror sarcină este să asigure o luminozitate corespunzătoare în interiorul clădirilor și crearea în acestea a confortului și ambientului plăcut pentru utilizatori. Reprezintă instrumentul perfect de formare a arhitecturii contemporane și de realizare a viziunilor îndrăznețe ale proiectanților. De cea mai mare popularitate se bucură în acest grup sistemele montant-traversă, oferta soluțiilor pentru fațade ALUPROF incluzând de asemenea o întreagă gamă de produse cu structură și aspect exterior diferit, inclusiv o serie de soluții individuale.
Pornind de la sistemul pentru fațadă rigla-montant, s-a utilizat o nouă abordare a construcției de profile din aluminiu și accesorii care răspunde de etanșeitatea și izolarea termică în punctele de legătură.
Sistemul de fațadă este destinat executării pereților ușori de protecție plați de tip suspendat și de umplere, precum și a altor structuri în spațiu.
Sistemul este destinat pentru construirea de pereți – panouri de protecție ușori suspendați și de umplere , precum și la luminatoare sau alte structuri.
PERETE TIP MONTANT-TRAVERSĂ CU IZOLAȚIE TERMICĂ RIDICATĂ
Sistemul de fațadă tip montant-traversă MB-SR50N HI+ este destinat pentru construirea pereților cortină ușori de tip suspendat sau de umplere, precum și a acoperișurilor, luminatoarelor și a altor structuri spațiale.
Construcția prezentată constituie o versiune a sistemului MB-SR50N, cu izolație termică ridicată.
FAȚADĂ SEMI-STRUCTURALĂ
Sistemul MB-SR50N EFEKT este conceput pentru construirea pereților-cortină ușori de tip suspendat sau de umplere, precum și a acoperișurilor, luminatoarelor și a altor structuri spațiale.
Video
SISTEM PENTRU STRUCTURI DIN LEMN ȘI OȚEL
Având drept bază sistemul montant-traversă MB-SR50N, a luat naștere sistemul, care permite îmbinarea materialelor cu proprietăți diferite dar și cu aspect diferit în interior față de exterior. Elementele din aluminiu utilizate la exterior asigură protecția durabilă a structurii împotriva condițiilor nefavorabile atmosferice. Pentru construcția structurii portante pot fi utilizate două tipuri de materiale: profile din lemn, folosite din prisma frumuseții naturale, care creează o atmosferă plăcută și caldă sau din profile de oțel, datorită aspectului de tip industrial sau distanțelor mari dintre prinderi.
PERETE TIP MONTANT-TRAVERSĂ, ANTI-INCENDIU
Sistemul de perete tip montant-traversă MB-SR50N EI este destinat pentru construirea pereților-cortină și de umplere ușori, anti-incendiu în clasele de rezistență la foc EI15, EI30, EI45, EI60 conform standardelor PN-EN 1364-3 și PN-EN 1364-1, precum și a acoperișurilor din sticlă în clasa de rezistență la foc REI30 / RE45 conform standardului PN-EN 1365-2. Sistemul este clasificat ca fiind fără răspândire a focului la incendiu (NRO).
Video
Unic prin designul său, sistemul MB-SR50N IW oferă o opțiune de perete cortină complet integrată, aceea a unei guri de aerisire ascunse spre interior. Aspectul exterior al unei lumini fixe nu este diferit de cel al unui orificiu Tilturn. Acest sistem este disponibil în trei opțiuni de „aspect finit”, inclusiv capac standard, capace de presiune plate de 4 mm și articulație din silicon opțională a sistemului EFEKT. Sistemul MB-SR50N IW găzduiește unități de geamuri de la 24 mm până la 56 mm
FEREASTRĂ CU DESCHIDERE ÎN PLAN PARALEL SPRE EXTERIOR
Structura se bazează pe profile din aluminiu cu barieră termică și permite la realizarea ferestrelor de dimensiuni mari și cu parametri tehnici înalți.
Video
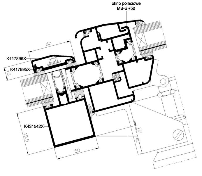
FEREASTRĂ DE MANSARDĂ
Fereastra de mansardă prezentată constituie o parte a sistemului MB-SR50N și este destinată pentru realizarea trapelor de ventilare.
Sistemul MB-SR50N PL, așa-numitul sistem „cu capace orizontale” este o versiune estetică a fațadei montant-traversă, în care pe partea văzută din exterior sunt subliniate diviziunile - orizontale sau verticale.
SISTEM DE PERETE CORTINĂ CU JALUZELE SKYFLOW INTERGRATE
Sistemul MB-SR50N SF este o soluție inovatoare care îmbină sistemul de jaluzele de fațadă SkyFlow cu sistemul de fațadă montant-traversă al firmei Aluprof – MB-SR50N.
Pe baza fațadelor din aluminiu MB-SR50 EI și MB-SR50N EI este posibilă construirea trapelor vitrate cu clasa de rezistență la foc REI 30 / RE 45 conf. standardului PN-EN 13501-2.
Ferestrele joacă un rol important în orice tip de acoperiș, indiferent de caracterul acestuia, deoarece pe ele se bazează aerisirea unei părți semnificative a clădirii. Acestea sunt situate adesea sus, unde accesul în scopul de mentenanță necesită un echipament special, de aceea ferestrele trebuie să fie durabile, etanșe și fiabile pe parcursul duratei de funcționare.
Sistemul MB-SG50 oferă posibilitatea de construire şi creare a pereţilor uşori de protecţie de tip suspendat sau de umplere, a acoperişurilor, a luminatoarelor. Permite asigurarea unei izolări termice în intervalul de grupe de materiale RMG 2.1 - 1 conform normei DIN 4108.
FAȚADĂ BAZATĂ PE SEGMENTE
Sistemul de perete-cortină din segmente MB-SE75 este destinat pentru executarea construcțiilor individuale în cazul în care printre cerințele de bază se află montarea rapidă și eliminarea schelei externe în timpul construirii.
Acest sistem, bazat pe construcţia ferestrelor cu grad de izolare termică superioară, MB-70, se utilizează în construcţiile elevaţiilor din bolţari sau în pereţi zidiţi cu goluri pentru ferestre.
Rezistență redusă la transferul de căldură
Permeabilitatea la aer
Presiunea vântului
Permeabilitatea la apă (deschidere exterioară)
Datorită acestora, fațada asigură un grad înalt de siguranță a clădirii împotriva pierderii de energie termică. Sistemul MB-TT50 oferă libertate în alegerea formei structurii clădirii, și este gândit ca soluție de bază pentru variantele rezistente la foc și antiefracție.
Grupul de prezentare din această secțiune cuprinde soluții care completează oferta noastră de sisteme din aluminiu pentru industria construcțiilor, care nu sunt clasificate în grupa de bază a produselor, cu toate acestea, care sunt esențiale , deși sunt utilizate mult mai rar decât sistemele pentru ferestre/ uși standard sau soluții pentru fațade. Acest grup include închideri de sere cu sistemul MB-WG60, sistem de montare pentru ferestre în placi stratificate, precum și anti-efracție, structuri care asigură protecția adecvată a încăperilor sau pentru a separa incintele unei clădiri.
Sunați-ne sau faceți comandă de un apel, și primiți ajutorul experților noștri!
Sistemul de fațadă este destinat executării pereților ușori de protecție plați de tip suspendat și de umplere, precum și a altor structuri în spațiu. Montanții și traversele cu lățimea de 60 mm permit construirea fațadelor cu linii de separare înguste vizibile, asigurând totodată durabilitatea și rezistența structurii. Soluțiile acestui sistem permit fățuirea suprafețelor montanților și traverselor din partea interioară și obținerea diverselor versiuni de aspect exterior. Avantajele sistemului MB-SR60N sunt parametrii tehnici foarte buni, libertatea, pe care o asigură în sfera formării spațiului și diversitatea elementelor deschise pentru montaj în fațadă. Merită să acordăm o atenție deosebită versiunii cu nivel crescut de izolație termică MB-SR60N HI+, în care au fost utilizați izolatori speciali. Este disponibilă de asemenea versiunea fără profile de mascare vizibile din exterior MB-SR60N EFEKT. Datorită ofertei bogate de profile și accesorii, arhitecții și proiectanții pot realiza chiar și cele mai curajoase idei în domeniul structurilor de aluminiu și sticlă. Pentru executarea peretelui întrerupt în secțiune orizontală și verticală, au fost utilizate profile speciale de suprapunere și profile de strângere și de mascare formate corespunzător, ce face să nu apară limitări în formarea corpului spațial al clădirii și elimină necesitatea utilizării unor stâlpi unghiulari speciali. Soluțiile moderne de accesorii și racorduri permit obținerea unor intervale crescute ale sarcinilor transferate – umplerea modulului fix al fațadei poate avea o greutate de până la 1100 kg.
Presiunea vântului
Permeabilitatea la aer
Rezistența la lovire
Permeabilitatea la apă (deschidere exterioară)
Sunați-ne sau faceți comandă de un apel, și primiți ajutorul experților noștri!
Forma montanților și a traverselor permite la construirea fațadelor estetice cu linii de separare înguste, vizibile, oferind în același timp durabilitatea și rezistența structurii. Rotunjirea profilelor cu raza de 2,5 mm caracteristică pentru sistemul MB-SR50, în sistemul MB-SR50N a fost înlocuită cu așa -numita muchie ascuțită. Această soluție are un impact esențial asupra esteticii structurii - formele de profile utilizate permit la alegerea montanților și traverselor astfel încât se obține efectul de suprafețe cu montanți și traverse acoperite din partea interioară a fațadei. Prin urmare, plăcile de sticlă pot forma o grilă uniformă vizual. Acest lucru este facilitat totodată prin îmbinările estetice și exacte cu alte elemente ale structurii: pereți interiori și tavane suspendate.
Caracteristicile sistemului MB-SR50N includ și o gamă largă de profile de montanți (de la 65 mm până la 325 mm) și traverse (de la 5 mm până la 189,5 mm), precum și soluții moderne privind accesorii și elemente de îmbinare. Acestea permit la creșterea sarcinii suportate – umplutura modului fix al fațadei poate avea o greutate de până la 1100 kg. Sistemul MB-SR50N oferă o libertate considerabilă în proiectarea punctelor de fixare a fațadei, o mare varietate de sticlă permite la utilizarea de panouri de sticlă cu dimensiuni și grosimi mari, precum și a geamurilor termoizolante cu două camere.
Rezistență redusă la transferul de căldură
Permeabilitatea la aer
Rezistența la lovire
Permeabilitatea la apă (deschidere exterioară)
Utilizarea distanțierului termic continuu confecționat din materialul izolant HPVC și a garniturilor profilate de geam din EPDM permit la obținerea unei clase de izolare termică adecvate și reduce la minim fenomenul de condensare a vaporilor de apă pe elemente din aluminiu.
O variantă estetică a sistemului MB-SR50N, ca și în cazul fațadelor de tip montant-traversă cunoscute anterior, sunt versiunile: PL (așa-numita linie orizontală și verticală care subliniază separări – orizontale sau verticale), precum și fațada semi-structurală de tip EFEKT. Trebuie menționată și versiunea cu izolare termică ridicată MB-SR50N HI, în care sunt utilizate izolatori speciali bi-componenți.
Sistemul MB-SR50N oferă posibilitatea de instalare în fațadă a diferitelor tipuri de ferestre și uși, inclusiv a ferestrelor dedicate fațadelor: fereastră rabatabilă și fereastră de mansardă. Deosebit de eficientă este utilizarea ferestrelor integrate în fațadă bazate pe soluția MB-SR50 IW.
Zonele buiandrug- pervaz ale fațadei, datorită structurii de tip sandwich cu utilizarea materialelor neinflamabile, cum ar fi vata minerală și plăci gips-carton pot obține, ca și celelalte sisteme de fațade Aluprof, clasificarea ignifugă EI30 și EI60, în funcție de construcție.
Pentru realizarea peretelui curbat în secțiunea orizontală și verticală au fost prevăzute profile de înveliș speciale și șipci de presare și mascare astfel încât nu există limitări de modelare a corpului spațial al clădirii și nu este necesară utilizarea montanților unghiulari speciali.
Documentul de referință pentru declararea conformității pentru fațade verticale bazate pe sistemul MB-SR50N este Standardul European Armonizat "PN-EN 13830 Pereți cortină – standard de produs"
Pe baza acestui sistem se pot realiza de-asemenea construcții anti-efracție.
Sunați-ne sau faceți comandă de un apel, și primiți ajutorul experților noștri!
Acest sistem permite la construirea fațadei cu linii de separare vizibile, oferind în același timp durabilitatea și rezistența structurii. Datorită ofertei bogate de profile, arhitecții și designerii pot realiza cele mai îndrăznețe idei privind structurile din aluminiu și sticlă. În vederea obținerii izolației termice, acustice optime și pentru a facilita montarea fațadei în sistemul MB-SR50N HI+ a fost utilizat un izolator din materialul PE, care oferă o izolație termică foarte bună (Uf: începând cu 0,59 W/m2K), iar forma acestuia permite la introducerea corectă a șurubului în timpul instalării panourilor de sticlă.
În ceea ce privește elementele care se deschid, în fațade cu izolație termică ridicată de tip HI” se recomandă în special utilizarea de ferestre și uși cu izolație termică ridicată realizate în sistemul MB-86 Aero
Rezistență redusă la transferul de căldură
Permeabilitatea la aer
Rezistența la lovire
Permeabilitatea la apă (deschidere exterioară)
Sunați-ne sau faceți comandă de un apel, și primiți ajutorul experților noștri!
Rezistență redusă la transferul de căldură
Permeabilitatea la aer
Rezistența la lovire
Permeabilitatea la apă (deschidere exterioară)
Sistemul este destinat pentru construirea și realizarea pereților cortină – plați de tip suspendat și de umplere, precum și a acoperișurilor, luminatoarelor și a altor structuri. Formele profilelor utilizate permit la alegerea montanților și traverselor astfel încât se obține efectul de suprafețe de montanți și traverse acoperite din partea interioară a fațadei.
Sistemul MB-SR50N HI prezintă caracteristicile și posibilitățile de bază ale structurii MB-SR50N, însă a atenție specială merită zona de izolație termică, în care au fost utilizați izolatorii bi-componenți speciali. Baza acestora este izolatorul HPVC (sau un ansamblu de izolatori de lățime adecvată), care permite la introducerea precisă a șurubului în timpul asamblării la fața locului. Pe ambele părți laterale ale acestuia sunt lipite elementele suplimentare din material flexibil care ridică nivelul de izolare termică și limitează circulația aerului în spațiul care separă elementele de umplere ale fațadei. Izolatorul astfel compus permite la menținerea confortului și preciziei de asamblare a fațadei tradiționale asigurând în același timp parametrii înalți de izolație termică – intervalul de coeficient de transfer termic este între 0,94 și 1,94 W/m2K, în funcție de profile și accesorii utilizate. Ca și în versiunea de bază a fațadei, structura permite la utilizarea diferitelor elemente de umplere inclusiv a panoului de sticlă de dimensiuni mari și a geamurilor termoizolante cu două camere. În ceea ce privește elementele de deschidere, se recomandă utilizarea în special a seriei HI, precum și a ferestrelor și ușilor cu izolație termică ridicată, realizate în sistemul MB-70HI.
Sunați-ne sau faceți comandă de un apel, și primiți ajutorul experților noștri!
Presiunea vântului
Permeabilitatea la aer
Rezistența la lovire
Permeabilitatea la apă (deschidere exterioară)
Structura lui portantă se bazează pe sistemul din aluminiu de tip montant-traversă MB-SR50N modern și testat, care oferă posibilitatea de alegere dintr-o ofertă variată de profile în vederea obținerii unui efect de acoperire a suprafeței de montanți și traverse din partea interioară a fațadei și, prin urmare de îmbinare a acesteia cu elemente din interiorul clădirii. Acest lucru asigură de-asemenea o compatibilitate cu alte structuri bazate pe gama largă de produse Aluprof SA.
MB-SR50N EFEKT este o fațadă în care, datorită utilizării sistemului special de fixare a geamurilor de montanți și traverse, se obține, din exterior, o imagine uniformă de perete de sticlă neted, divizat prin structura de linii verticale și orizontale cu lățime de doi centimetri. Rosturile dintre panourile de sticlă ale fațadei sunt umplute cu liant de silicon special care asigură o etanșeitate sporită a structurii și proprietăți termoizolante ridi
Unul dintre principalele avantaje ale fațadei MB-SR50N EFEKT este posibilitatea de alegere dintr-o gamă largă de sticlă: catalogul bogat de elemente de umplere include sticlă cu una sau două camere și panouri opace pe bază de geamuri termoizolante. O adevărată noutate și fără îndoială, un hit în acest tip de fațade îl constituie posibilitatea utilizării pachetelor de sticlă cu geam laminat. Sistemul de fixare a elementelor de umplere, dezvoltat cu precizie, permite la adaptarea flexibilă și economică la cerințele tehnice ale proiectului respectiv - acesta variază în funcție de greutatea sticlei și include soluțiile care permit la transferarea sarcinilor de pe geamuri pe profile, capacitatea lor portantă crescând de până la 450 kg. Sunt disponibile două variante standard de fixare a geamului: cu utilizarea ramei continue sau punctiforme, ceea ce permite la optimizarea procesului de producție și a prețului. Un alt mare avantaj al sistemului este faptul că acesta este recomandat de trei mari furnizori mondiali de silicon pentru construcții și rezistență la schimbări de vreme: Dow Corning, Sica și Tremco-Ilbruck ceea ce nu numai că ridică prestigiul acestei soluții dar asigură și garantează rezistența și etanșeitatea structurii, precum și accesul facil la tehnologii ale fabricilor de sticlă. De remarcat este și posibilitatea utilizării siliconilor dintr-o paletă variată de culori, ceea ce în mod semnificativ extinde spectrul de creare a esteticii fațadei.
Fațadele realizate în sistemul MB-SR50N EFEKT prezintă parametri de performanță excelenți. Utilizarea lor permite la obținerea nu numai aspectului estetic al fațadei dorit dar și nivelul de izolație termică foarte înalt care, având în vedere tendința puternică la nivel mondial vizează reducerea consumului energetic al clădirilor, este unul din criteriile principale de evaluare a pereților-cortină
Sunați-ne sau faceți comandă de un apel, și primiți ajutorul experților noștri!
Caracteristic sistemului este un profil din aluminiu denumit montant-traversă, care se fixează de structurile din lemn sau oțel cu ajutorul prinderilor. Profilul montant-traversă este utilizat pentru fixarea sticlelor sau umpluturilor, pentru transferarea sarcinilor de la acțiunea vântului sau a altor forțe care acționează asupra structurii. Acest profil joacă un rol fundamental în sfera evacuării apei și a ventilației structurii, în acest scop fiind protejat cu garnituri EPDM. Aceste garnituri au fost diferențiate în scopul obținerii unei evacuări în cascadă a apei de pe montant și traversă, având o semnificație fundamentală pentru păstrarea etanșeității. Printre elementele vitrate funcționează un izolator termic cu parametri foarte buni. Datorită elementelor componente, structura sistemului MB-SR50N A îndeplinește cerințele ridicate în ceea ce privește gradul de izolare termică, fonică și a etanșeității la apă și aer. Sistemul MB-SR50N A poate fi folosit atât pentru structurile verticale, acoperișurile de sticlă, cât și în grădinile de iarnă. Aspectul profilelor din aluminiu, similar cu peretele cortină tradițional MB-SR50N, poate fi personalizat, în funcție de preferințe și de proiectul arhitectural prin conferirea formei corespunzătoare utilizând profile variate de mascare.
Rezistență redusă la transferul de căldură
Grosime pachet de sticlă
Greutatea maximă admisă
Sunați-ne sau faceți comandă de un apel, și primiți ajutorul experților noștri!
Rezistență redusă la transferul de căldură
Permeabilitatea la aer
Permeabilitatea la apă (deschidere exterioară)
În structura MB-SR50N EI sunt utilizate profile ale sistemului de fațadă de bază MB-SR50N: montanții cu adâncime de la 85÷225 mm și traverse cu adâncime de la 69,5÷189,5 mm. Aspectul vizual al fațadei anti-incendiu nu diferă de cel al sistemului de bază. În vederea obținerii rezistenței la foc, montanții și traversele au inserții speciale ignifuge. Această inserțir este compusă din profilul din aluminiu care îndeplinește rolul de întărire, acoperit cu plăci din materiale ignifuge. Geamurile sau alte elemente de umplere sunt fixate în crestăturile formate din profile de montanți și traverse ignifuge și din baghete de presare. Pentru a obține izolația termică și acustică optimă în construcție se află izolatorul termic continuu confecționat din materialul HPVC, și garnituri de etanșare geam din EPDM. În plus, pe suprafețele laterale ale izolatorului a fost utilizată o bandă ignifugă la care la temperatura înaltă se umflă și umple spațiul între elementele de umplere a fațadei. Bagheta de presare este fixată de profile portante cu ajutorul șurubului și șaibei din oțel inoxidabil. Acest sistem de sticlă asigură obținerea parametrilor tehnici corespunzători ai fațadei și protejează geamurile sau elemente de umplere împotriva căderii din ramă în timpul incendiului.
Structura anti-incendiu a sistemului tip montant-traversă permite la utilizarea îmbinărilor unghiulare de până la ±7.5° pe o parte și construirea fațadelor înclinate față de verticală la ±10°, iar geamurile de acoperiș care se bazează pe aceasta, pot avea unghiul de înclinare de la 0 până la 80°. Există posibilitatea instalării ușilor sistemului MB-78EI în fațadă tip montant-traversă, fiind menținută rezistența întregii structurii la foc în clasele EI30 sau EI60
Sunați-ne sau faceți comandă de un apel, și primiți ajutorul experților noștri!
Presiunea vântului
Rezistență redusă la transferul de căldură
Rezistența la lovire
Permeabilitatea la apă (deschidere exterioară)
Sunați-ne sau faceți comandă de un apel, și primiți ajutorul experților noștri!
common.mb-sr50now_modal
Presiunea vântului
Permeabilitatea la aer
Permeabilitatea la apă (deschidere exterioară)
Sunați-ne sau faceți comandă de un apel, și primiți ajutorul experților noștri!
Rezistență redusă la transferul de căldură
Rezistența la impact
Permeabilitatea la aer
Permeabilitatea la apă (deschidere exterioară)
Ferestrele de acest tip sunt prevăzute pentru instalare pe acoperișuri cu unghiul de înclinare de la 5° până la 75° față de verticală. Lățimea maximă a ferestrei poate fi de 1,80 m, înălțimea de 2,05 m, iar suprafața maximă totală a geamului este de 3,40 m2. Greutatea ferestrei este limitată de parametrii tehnici ai mecanismelor de deschidere și balamale utilizate și aceasta poate de fi de până la 150 kg. Construcția oferă posibilitatea de montare a setului de geamuri cu grosime de 24-32 mm.
Fereastra de mansardă este o construcție modernă și prezintă numeroase avantaje. Profilele portante din aluminiu sunt cu trei camere, izolate cu bariere termice de înălțime corespunzătoare, ceea ce le asigură o rezistență corespunzătoare, izolare termică și rigiditate. Formele lor și designul compact fac ca fereastra să nu iasă din planul acoperișului. Bagheta de mascare din partea exterioară constituie o streașină pentru apa pluvială, iar din partea interioară este cât mai aproape de geam pentru a facilita curgerea apei. Balamalele sunt ascunse în interiorul profilelor astfel încât nu sunt expuse la acționarea intemperiilor, ceea ce prelungește semnificativ durata de viață a acestora.
Ferestrele de mansardă sunt echipate cu sistemul de drenare-ventilare eficient, fixate de sistemul de perete de tip montant-traversă MB-SR50N. Pentru a asigura etanșeitatea înaltă la pătrunderea apei, s-a utilizat în acesta garniturile de etanșare confecționate din EPDM celular. Fereastra este dotată, din partea exterioară cu un șanț din aluminiu special pentru colectarea apei din partea interioară a geamului.
Construcția MB-SR50N RW este adaptată pentru o gama largă de sisteme de închidere existente pe piață iar ferestrele executate în acest sistem, în caz de necesitate, pot îndeplini rolul de trape de fum.
Sunați-ne sau faceți comandă de un apel, și primiți ajutorul experților noștri!
Presiunea vântului
Permeabilitatea la aer
Permeabilitatea la apă (deschidere exterioară)
Acest lucru se realizează prin utilizarea unor profile corespunzătoare pentru mascare (de ex. eliptice), care accentuează o direcție a diviziunii fațadei. În zonele perpendiculare pe acestea apare însă eliminarea profilelor de fixare a geamului. În aceste caz pot fi folosite elemente de îmbinare care să funcționeze între elementele de umplere, mascate cu silicon structural sau cu o garnitură specială, și deci invizibile din exterior. Similar cu alte versiuni ale fațadei, în sistemul MB-SR50N PL pot fi folosite în paralel ferestre batante sau culisante în paralel, fără modificarea aspectului fațadei.
Sistemul MB-SR50N PL ajută la execuția pereților ușori de protecție de tip suspendat și de umplere, precum și a acoperișurilor, luminatoarelor și a altor structuri. Structura portantă a acestuia este bazată pe sistemul de aluminiu montant-traversă MB-SR50N modern, verificat, care oferă spre alegere o gamă largă de profile și posibilitatea unei astfel de selecții a profilelor, care să permită căptușirea suprafeței montanților și traverselor de pe partea interioară a fațadei, iar datorită acestui lucru o îmbinare estetică cu elementele interioare de construcție ale clădirii.
Sunați-ne sau faceți comandă de un apel, și primiți ajutorul experților noștri!
Aceasta a apărut înainte de toate cu gândul la realizările de clădiri, unde un rol deosebit îl joacă armonia între aspectele tehnice și estetice. Având în vedere aceste considerente, pentru montanții fațadei au fost proiectate profile speciale de prindere, care permit montajul umplerii fațadei și profilelor de mascare, care joacă totodată funcție de ghidaj pentru jaluzelele de fațadă. Datorită acestui lucru, deciziile privind montajul acestui tip de protecții pot fi luate într-o etapă ulterioară a realizării investiției, când în clădire este deja instalată fațada. Întregul mecanism de protecție solară a fost ascuns discret în spatele casetei estetice fabricate din aluminiu extrudat. Produsul este disponibil cu ghidaj de aluminiu și de cablu. Dimensiuni max.: 4500 x 4000 mm.
Presiunea vântului
Permeabilitatea la aer
Permeabilitatea la apă (deschidere exterioară)
Sunați-ne sau faceți comandă de un apel, și primiți ajutorul experților noștri!
Profilele montanților și traverselor care îndeplinesc în acoperiș rolul de căpriori și pene sunt asamblate corespunzător între ele creând un schelet din aluminiu fixat cu ajutorul consolelor speciale de construcția clădirii. Ca și în cazul sistemelor de fațade standard, profilele sunt echipate cu inserții ignifuge speciale compuse din profile din aluminiu care îndeplinesc rolul de întărire, acoperite cu plăci din materiale ignifuge. Soluția standard nu necesită o întărire specială de ex. Cu oțel.
Testările de incendiu ale vitrajelor în două versiuni: ca structură plată și înclinată au asigurat clasificarea acoperișurilor cu unghiul de înclinare de la 0° până la 80° față de orizontală. În structură pot fi utilizați căpriori cu adâncime de 85 ÷ 225 mm și pene cu adâncime de 65 ÷ 189.5
Geamurile sunt fixate în caneluri ale căpriorilor și penelor, precum și ale baghetei de presare care este fixată de profile portante. În cadrul sistemului există posibilitatea de utilizare a sticlei cu grosime de la 36 până la 52 mm. Dimensiunile maxime ale geamurilor sunt: 1250 mm x 3250 mm. De remarcat trebuie faptul că este posibilă o modificare a acestor dimensiuni cu condiția că nu va fi depășită suprafața maximă a geamului, precum și faptul că geamul rezistent la foc poate fi utilizat în combinație cu orice geam plasat în sistem pe partea exterioară.
Sunați-ne sau faceți comandă de un apel, și primiți ajutorul experților noștri!
Ferestrele încorporate pe pante din sticlă trebuie să prezinte caracteristici speciale. În afară de funcția de deschidere, acestea trebuie să se potrivească cu restul construcției în ceea ce privește estetica, posibilitatea vitrificării și izolarea termică.
MB-RW este un sistem modern care constituie un răspuns la cerințe termice și funcționale tot mai mari pentru acoperișuri moderne. Acesta completează oferta de sisteme din aluminiu economice Aluprof. Ferestrele executate în acest sistem sunt destinate pentru instalarea acoperișurilor bazate pe sisteme de montant-traversă din grupul MB-SR50N și MB-TT50, cu unghiul de înclinare de la 3° până la 75° față de orizontală. Ferestrele de mansardă pot avea dimensiunile în axele căpriorilor/ penelor de până la 2,5 m și greutate de până la 200 kg.
Sistemul MB-RW oferă izolație termică puternică și o gamă largă de opțiuni de geamuri (32-51 mm), ceea ce îl face ideal pentru proiectele în care se pune accent pe eficiență energetică ridicată. În acest scop au fost utilizate materiale de izolare special create. Garnitura de etanșare geam și bagheta de mascare oferă parametrii remarcabili de etanșare a structurii și, în același timp, asigură montarea rapidă și simplă a elementelor de umplere.
Un alt avantaj al ferestrelor de mansardă bazate pe sistemul MB-RW sunt capacitățile tehnice privind accesoriile. Pentru a simplifica procesul de fabricație, sistemul utilizează balamale cu cleme speciale, care pot fi montate în ultima etapă a construcției. Pentru a mări dimensiunile ferestrei, pot fi dotate opțional cu elemente de feronerie multi-punct, fără să fie afectată etanșeitatea întregii structuri. De-asemenea este posibilă executarea de ferestre cu deschidere manuală cu ajutorul mânerului. Sistemul prevede instalarea mecanismelor de acționare electrice de la producători. Prin urmare, ferestrele MB-RW pot fi o parte a sistemului de ventilare a clădirii.
Rezistență redusă la transferul de căldură
Permeabilitatea la aer
Rezistența la impact
Permeabilitatea la apă (deschidere exterioară)
Sunați-ne sau faceți comandă de un apel, și primiți ajutorul experților noștri!
Construcţia portantă a sistemului MB-SG50 este bazată pe un schelet de tip montant – riglă din aluminiu cu lăţimea profilelor de 50 de mm. Riglele sunt montate pe montanți în sistem de suprapunere, ceea ce permite utilizarea mai multor metode de montare.
Trebuie menţionată estetica construcţiei: elementele de umplere sunt distanţate la 16 mm, vizibilitatea profilelor din interiorul încăperii este de numai 85 de mm. Din cauza unei construcţii asemănătoare a stâlpilor şi a riglelor, aspectul peretelui din interiorul încăperii este identic cu sistemul de profile MB-SR50, ceea ce face ca ambii pereţi să poată fi instalaţi în obiectiv alături, unul lângă celălalt. Această compatibilitate se observă şi în utilizarea unor accesorii identice sau asemănătoare pentru montarea şi îmbinarea anumitor elemente şi reduce mult costurile de construcţie.
Rezistență redusă la transferul de căldură
Permeabilitatea la aer
Max. grosimea umplerii
Permeabilitatea la apă (deschidere exterioară)
Sistemul oferă posibilitatea de asigurare mecanică a geamurilor exterioare într-un mod continuu, în punct sau în colţurile setului, conform cerinţelor individuale. O caracteristică foarte importantă a sistemului MB-SG50 este de asemenea montarea ramelor laterale din aluminiu, ceea ce permite montarea panourilor translucide pe peretele plin.
Informaţii detaliate despre acest sistem sunt disponibile deja în formă tipărită pe post de completare a catalogului pentru arhitecţi, documentaţia completă pentru producătorii de construcţii din aluminiu, au fost amplasate în zona autorizată de pe paginile noastre de Internet. Sistemul are aprobarea AT-15-6060/2003.
Sunați-ne sau faceți comandă de un apel, și primiți ajutorul experților noștri!
Construcția fațadei MB-SE75 este compusă din segmente fixate de construcția portantă a clădirii și asamblate între ele. Procesul de prefabricare a elementelor are loc într-o unitate de producție, ceea ce ridică semnificativ calitatea produsului final. Din conceptul tehnologic adoptat în acest caz rezultă principalele avantaje ale acestei soluții: timpul de asamblare la locul de construcție este semnificativ mai scurt, comparativ cu un montant tradițional, datorită aplicării segmentelor vitrate complete; costurile de construcție sunt de asemenea reduse datorită eliminării totale a schelei externe.
Sistemul de fațadă bazat pe segmente îndeplinește cele mai ridicate cerințe tehnice și estetice. Construcțiile executate în acest sistem atât din partea exterioară cât și interioară se caracterizează prin lățimea vizibile a profilelor de 75 mm, cu rost de dilatare îngust de 9 milimetri între segmente.
În funcție de cerințele de rezistență, sistemul include o serie de profile cu adâncime de 85-145 mm. Materialul de umplutură al fațadei MB-SE75 poate avea grosime de 26-42 mm
Acest sistem se caracterizează prin izolare termică a clădirii foarte bună, coeficientul de transfer termic Uf pentru montanți și traverse, în funcție de rolul lor în clădire este de la 1,56 până la 2,83 [W/m2K]
Construcția prezintă o rezistență ridicată la apă și aer ceea ce confirmă parametrii obținuți în timpul testărilor ale Institutului Tehnic de Construcții.
Rezistență redusă la transferul de căldură
Permeabilitatea la aer
Presiunea vântului
Permeabilitatea la apă (deschidere exterioară)
Sunați-ne sau faceți comandă de un apel, și primiți ajutorul experților noștri!
În faţadele de acest tip sunt două tipuri de câmpuri: „reci” şi „calde”. Câmpurile „calde” constituie izolarea termică a ferestrelor montate în faţa faţadei în golurile pentru ferestre. Câmpurile „reci” în schimb sunt benzile dintre ferestre care protejează construcţia şi izolaţia termică (de exemplu vata minerală) împotriva influenţelor atmosferice.
Utilizarea acestui sistem micşorează timpul de construcţie, datorită posibilităţii de „închidere” a orificiilor ferestrelor înainte de realizarea centurilor de deasupra ferestrelor şi a suprafeţei exterioare a faţadei.
Sistemul MB-70CW se caracterizează printr-o foarte bună izolare termică (grupa 1) şi acustică, îndeplinind cerinţele estetice impuse de către arhitecţi şi investitori pentru acest tip de faţade, adică uitându-ne din exterior nu este o diferenţă vizibilă între câmpurile „calde” şi cele „reci” precum şi între elementele fixe şi cele care se deschid. Benzile vizibile ale profilelor din aluminiu cu vedere din partea exterioară a construcţiei sunt mult mai mici, lăţimea acestora este de doar 78,5 mm, de aceea construcţia are un aspect de zvelt şi uşor.
Catalogul detaliat al acestor produse este deja disponibil pentru partenerii noştri în zona utilizatorilor înregistraţi, pe paginile noastre de Internet.
Sunați-ne sau faceți comandă de un apel, și primiți ajutorul experților noștri!
Sunați-ne sau faceți comandă de un apel, și primiți ajutorul experților noștri!
Sunați-ne sau faceți comandă de un apel, și primiți ajutorul experților noștri!
Suntem aici ca să vă ajutăm! Descrieți-ne problema dvs completând formularul de mai jos sau Solicitați un Apel.
Suntem aici ca să vă ajutăm! Solicitați un apel gratuit completând formularul de mai jos.